中建三局员工食堂
来源:汉唐装饰 发布日期:2025-08-19 14:10:07

项目名称:中建三局第一建设安装有限公司员工食堂装饰项目

项目地址:龙华区壹城中心花园1栋125、128及五区2楼25、28
项目面积:550平方

主要材质:地砖、铝方通、护墙板、布艺硬包、不锈钢

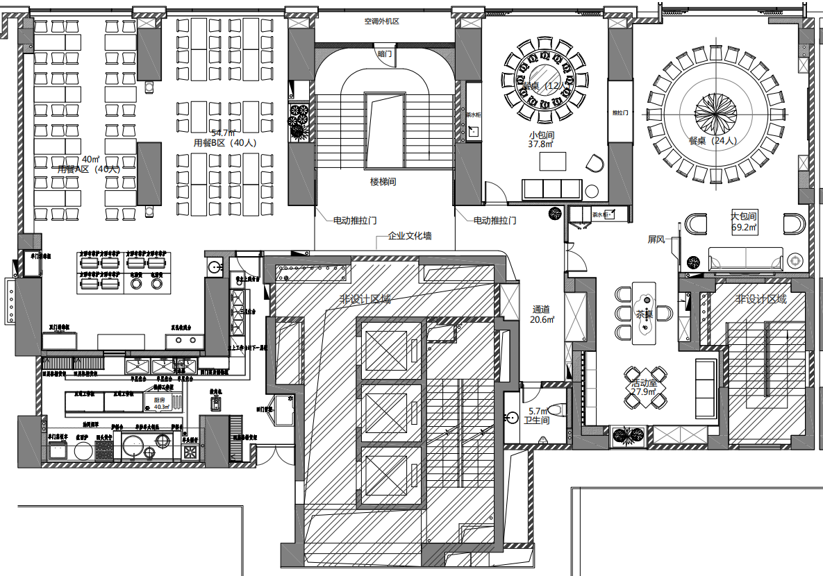
平面方案

楼梯间

      入口墙面采用积木形式做了一个文化墙,作为员工就餐区域,设计上做的休闲活泼一点,材质上也比较简单,地面白色地砖,吊顶用木纹铝方通,整体颜色比较温暖简洁。

VIP接待室

      整体色调采用暖色布艺硬包及木纹色护墙板,吊顶采用了软膜灯箱模拟天空自然光,让空间明亮柔和,圆餐桌吊顶采用圆顶呼应,拉高了层高,让吊顶层次更丰富,整体风格偏新中式风格。

员工就餐区
      色彩采用暖色调的护墙板,铝方通,局部做了石膏板吊顶,某些不好用的空间做了造景绿植点缀,美化空间。



TAG标签: 办公室设计公司 |  办公室装修 |  办公室装修公司 |  办公装修 |  工厂施工装修 |  工装公司哪家好 |  公司办公室装修 |  公司办公室装修公司 |  公装装修 |  会所室内设计 |  科技园办公室设计装修 |  企业办公室设计 |  企业办公室装修 |  企业办公室装修公司 |  企业装修 |  企业装修公司 |  设计公司 |  设计装修公司 |  深圳旧厂房改造 |  深圳办公场地装修 |  深圳办公室改造装修 |  深圳办公室设计 |  深圳办公室室内装修 |  深圳办公室装修 |  深圳办公室装修公司 |  深圳办公装修找哪家 |  深圳店面装修公司 |  深圳工装设计 |  深圳公司办公室装修 |  深圳企业办公室设计 |  深圳企业办公室装修 |  深圳写字楼设计 |  深圳写字楼装修 |  深圳写字楼装修设计公司 |  深圳写字楼装修设计公司排名榜 |  深圳一级资质装修公司 |  深圳装饰工程 |  深圳装修 |  深圳装修公司 |  深圳装修公司哪家好 |  深圳装修设计公司 |  写字楼设计 |  写字楼装修 |  写字楼装修费用 |  写字楼装修公司 |  园区改造设计公司 |  装饰工程公司 |  装饰公司 |  办公室设计 |  会所设计公司 |   |  钢构 |  公司 |  项目 |  名称 |  中建 |  三局 |  华南 |  食堂 |  员工 | 
相关新闻